Ingreso de Usuarios
E-mail
Contraseña
INGRESAR
Ingresando...
Olvidé mi contraseña!
×
¿Qué estás buscando?
BUSCAR!
JARDINYA.COM
DISEÑOS VIVEROS JARDINEROS
QUIERO
MI DISEÑO
Ingreso de Usuarios
E-mail
Contraseña
INGRESAR
Ingresando...
DISEÑOS
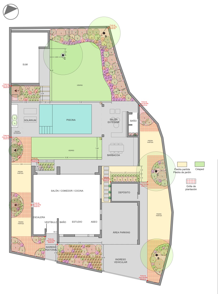
“Proyecto de paisajismo CLL”
Proyecto de paisajismo CLL
Cadiz, España - 340 m2
Sistema de espacios verdes articulados, donde la vegetación cumple un rol estético, funcional y ambiental.




Conceptos clave del diseño:

1. Jardín exuberante y sostenible: El proyecto busca un jardín lleno de vida, color y textura, disfrutable todo el año. Se equilibra una imagen tropical–exuberante con criterios de bajo consumo hídrico y mantenimiento controlado.

2. Reducción estratégica del césped: se limita a áreas de uso social y recreativo (piscina, juegos infantiles). El resto del jardín se resuelve con grava decorativa y cubresuelos vegetales, reduciendo riego y mantenimiento sin perder superficie verde

3. Uso de árboles: se utilizan estratégicamente para amrcar accesos, dar escala y verticalidad, aportar floración, perfume y acondicionamiento ambiental.

4. Contrastes de texturas y movimiento: se combinan follajes rígidos y estructurales con follajes etéreos y acintados, y herbáceas florales dinámicas.
Ir a Diseños
Desarrollado por ARKANTIR Comunicación de Marcas